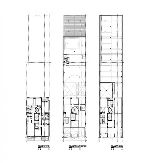
Estudio de arquitectos: Rumieri + Biscayart
Superficie terreno: 547,84 m²
Superficie cubierta: 1.957,16 m²
Estudio de arquitectos: Rumieri + Biscayart
Superficie terreno: 547,84 m²
Superficie cubierta: 1.957,16 m²
Superficie semicubierta: 263,94 m²
Año de ejecución: 2006 / 2007
Ubicación: La Paz 1250 – Rosario, Santa Fe, Argentina